Bifamiliare in vendita

Romano Di Lombardia, Ca Pagani
€ 800.000
8 locali 8 locali
363 Mq 363 Mq
4 bagni 4 bagni

Bifamiliare in vendita

Romano Di Lombardia, Ca Pagani

Descrizione annuncio

ROMANO DI LOMBARDIA

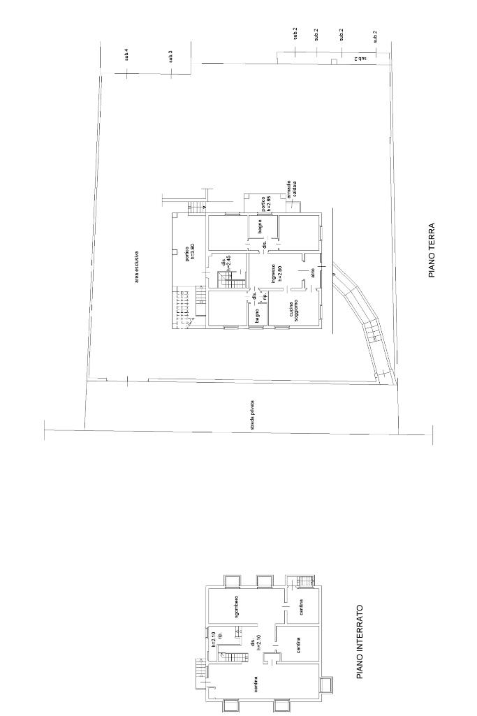
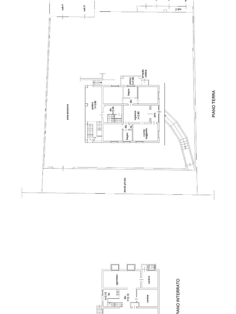
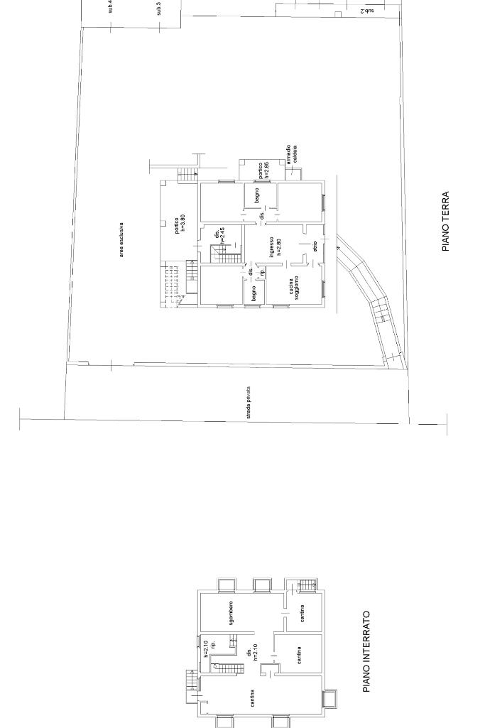
Splendida villa singola immersa in un’area privata di circa 900 mq, ideale per chi cerca indipendenza, ampi spazi e una soluzione versatile per famiglie numerose o per chi desidera unire abitazione e attività.

La proprietà è composta da due appartamenti quadrilocali:

l’unità al piano primo, costruita nel 2010, è stata recentemente migliorata grazie al cappotto esterno realizzato quest’anno, che ne aumenta l’efficienza energetica;

l’appartamento al piano terra è ampio, luminoso e ben distribuito. Entrambe le abitazioni dispongono di camino, così come la taverna, grande e accogliente, perfetta per momenti conviviali.

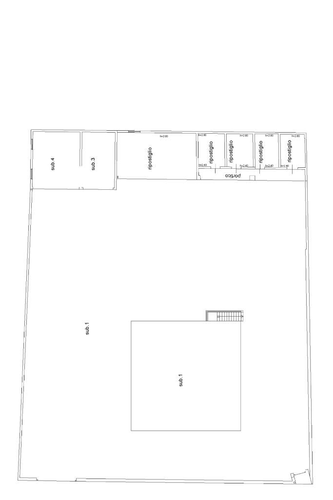
Completano la proprietà una comoda dependance ideale per ospiti o attività indipendenti, quattro box per cavalli e due autorimesse che assicurano ampio spazio per veicoli e attrezzature.

Una soluzione unica nel suo genere, perfetta per chi desidera vivere nella tranquillità senza rinunciare al comfort e alla multifunzionalità degli spazi.

Mostra tutto

Nelle vicinanze

Trasporto pubblico Trasporto pubblico
Romano
Romano
830 m
SAI
SAI
590 m
Trasporto pubblico
850 m
Ricariche auto elettriche Ricariche auto elettriche
Romano Stadio | Ressolar
870 m
Scuole Scuole
Scuola Primaria “G.B. Mottini”
310 m
Scuola secondaria di primo grado G.B. Rubini
380 m
Scuola Media "G.B. Rubini"
920 m
Istituto Scolastico Superiore "G.B. Rubini"
1,0 Km
Istituto Superiore Don Lorenzo Milani
1,2 Km
Farmacia Farmacia
Farmacia Comunale
720 m
Farmacia Comunale 2
1,5 Km
Ospedali Ospedali
Ospedale Santissima Trinità
1,2 Km
Supermercati Supermercati
LD - MD market
520 m
Lidl
710 m
Conad
1,1 Km
Negozi Negozi
Negozi
1,5 Km
Bar Bar
Barangolo
910 m
Bar
2,1 Km
Ristoranti Ristoranti
Ristorante Zenith
700 m
La conchiglia
1,0 Km
Max 3
1,5 Km
Pizzeria Sole
1,5 Km
Ristoranti
1,6 Km
Mostra tutto

Caratteristiche

Rif.:
61150196
Piano:
Su più livelli di 1
Totale piani:
1
Box:
2
Balconi:
3
Terrazzi:
1
Mostra tutto
Prezzo Prezzo
€ 800.000
Rata mutuo Rata mutuo
€ 3.800 / mese
Spese annue Spese annue
€ 0
Proponi il tuo prezzoProponi il tuo prezzo
Immobile valutato con T·Valuta

Classe Energetica

C
C
C
C
C
C
C
C
C
EP globale non rinnovabile:
100.00 kW h/m² anno
EP globale rinnovabile:
0.00 kW h/m² anno
EP invernale del fabbricato:
EP estiva del fabbricato:
Anno di costruzione:
1973
Riscaldamento:
Autonomo
Tipo impianto:
A pavimento
Tipo alimentazione:
Metano

Ti interessa visionare l'immobile?

Fissa un appuntamento  Fissa un appuntamento

Richiedi informazioni

Clicca su Leggi per aprire l'informativa
* Questi campi sono obbligatori

Calcola il tuo mutuo

Semplice e senza impegno
Anticipo

( % )
Mutuo

( % )

pochi semplici passi

inserisci i tuoi dati
Questionario completato
Grazie per aver richiesto un appuntamento senza impegno con un nostro Consulente del Credito e Assicurativo.

Hai inserito correttamente tutti i dati necessari e a breve riceverai una e-mail con un link da convalidare per inviare i tuoi dati.
Affiliato
Agenzia Imm.re Rdl Srl
Via Monsignor Rossi , 23 24058 Romano Di Lombardia (BG)

Il nostro staff


  • Carlo Assandri
    Affiliato

  • Simonetta Olivini
    Coordinatrice

  • Riccardo Villa
    Responsabile

  • Helga Sandor
    Collaboratrice
Via Monsignor Rossi , 23 24058 Romano Di Lombardia (BG)
Zona: Romano di Lombardia - Covo
Mostra su mappa
Orari: da lunedi a venerdi 09.00-12.30/14.30-20.00; sabato 09.00-12.30/14.30-18.00
Affiliato
Agenzia Imm.re Rdl Srl
Via Monsignor Rossi , 23 24058 Romano Di Lombardia (BG)

2026 Tecnocasa Franchising S.p.A. - P. IVA 08365160152 - Via Monte Bianco 60/A 20089 Rozzano (MI). Ogni agenzia ha un proprio titolare ed è autonoma. Privacy policy | Policy utilizzo | Cookie policy