Villa singola in vendita

Romano Di Lombardia, Via Delle Comete
€ 389.000
4 locali 4 locali
168 Mq 168 Mq
2 bagni 2 bagni

Villa singola in vendita

Romano Di Lombardia, Via Delle Comete

Descrizione annuncio

ROMANO DI LOMBARDIA

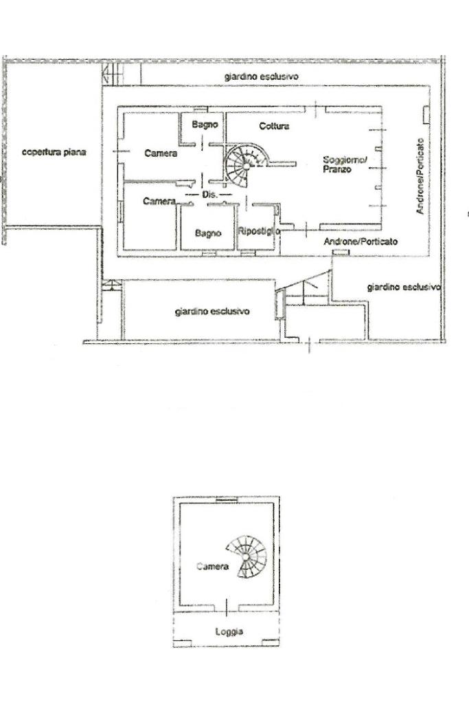
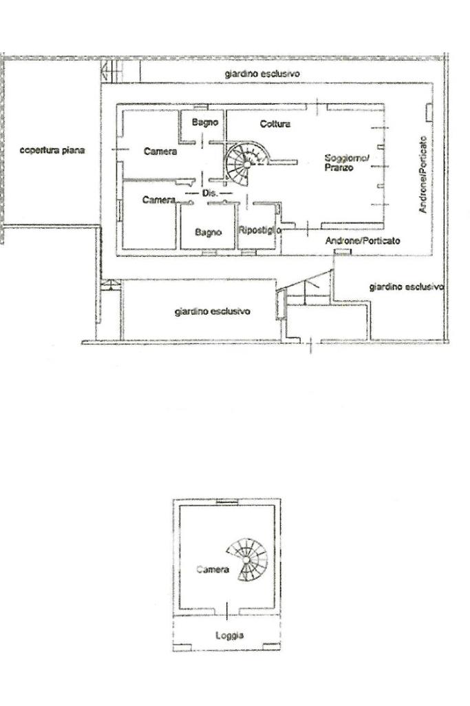
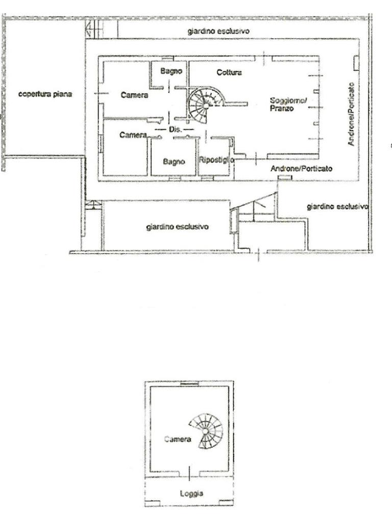
In zona residenziale tranquilla e ben servita, proponiamo in vendita una villa singola edificata nel 2010 su un lotto di 350 mq, ideale per chi cerca indipendenza e comfort.

L'abitazione si sviluppa prevalentemente al piano terra e offre una luminosa zona giorno in open space con cucina e soggiorno.

Nella zona notte si trovano una spaziosa camera singola, una camera matrimoniale con bagno privato completo di doccia, un secondo bagno con vasca a servizio della zona e un comodo ripostiglio.

Al primo piano si trova uno spazio attualmente adibito a studio e una grande terrazza che circonda l’intero piano, ideale per momenti di relax all’aperto.

All’esterno la proprietà è completata da un garage doppio.

La villa è dotata di riscaldamento a pavimento con termostati indipendenti in ogni ambiente, climatizzazione con pompe di calore in tutti i locali, caldaia a condensazione e pannelli solari. I pavimenti sono in parquet e ceramica monocottura di alta qualità, serramenti in PVC, ed è presente un impianto d’allarme che copre l’intera abitazione.

La classe energetica B e l'attenzione ai dettagli costruttivi rendono questa villa una soluzione ideale per chi cerca una casa moderna, efficiente e pronta da abitare.

Mostra tutto

Nelle vicinanze

Trasporto pubblico Trasporto pubblico
Romano
Romano
1,1 Km
Trasporto pubblico
750 m
SAI
SAI
1,7 Km
Ricariche auto elettriche Ricariche auto elettriche
Romano Stadio | Ressolar
1,5 Km
COVO Repubblica | RESSOLAR
2,3 Km
Covo Barco | RESSOLAR
2,5 Km
Scuole Scuole
Scuola elementare "Stadio"
350 m
Scuola Primaria Stadio
370 m
Oxford School
640 m
Scuola Primaria "De Amicis"
680 m
Scuola Media "G.B. Rubini"
930 m
Farmacia Farmacia
Farmacia Comunale 2
550 m
Farmacia Comunale
1,4 Km
Ospedali Ospedali
Ospedale Santissima Trinità
590 m
Supermercati Supermercati
Conad
730 m
Lidl
1,1 Km
LD - MD market
1,9 Km
Negozi Negozi
Negozi
790 m
Bar Bar
Barangolo
1,0 Km
Gelateria Maccalli
2,5 Km
Bar
2,6 Km
Ristoranti Ristoranti
Pizzeria Sole
520 m
La conchiglia
810 m
Piz Stop
960 m
Max 3
1,2 Km
Ristoranti
1,6 Km
Mostra tutto

Caratteristiche

Rif.:
61112642
Piano:
1 di 2 (Piano su più livelli)
Box:
1
Terrazzi:
1
Camere da letto:
3
Arredamento:
Parziale
Mostra tutto
Prezzo Prezzo
€ 389.000
Rata mutuo Rata mutuo
€ 1.798 / mese
Spese annue Spese annue
€ 0
Proponi il tuo prezzoProponi il tuo prezzo
Immobile valutato con TecnoValore

Classe Energetica

B
B
B
B
B
B
B
B
B
EP globale non rinnovabile:
196.32 kW h/m² anno
EP globale rinnovabile:
25.41 kW h/m² anno
EP invernale del fabbricato:
EP estiva del fabbricato:
Anno di costruzione:
2010
Riscaldamento:
Autonomo
Tipo impianto:
A pavimento
Tipo alimentazione:
Metano

Ti interessa visionare l'immobile?

Fissa un appuntamento  Fissa un appuntamento

Richiedi informazioni

* Questi campi sono obbligatori

Calcola il tuo mutuo

Semplice e senza impegno
Anticipo

( % )
Mutuo

( % )

pochi semplici passi

inserisci i tuoi dati
Questionario completato
Grazie per aver richiesto un appuntamento senza impegno con un nostro Consulente del Credito e Assicurativo.

Hai inserito correttamente tutti i dati necessari e a breve riceverai una e-mail con un link da convalidare per inviare i tuoi dati.
Affiliato
Agenzia Imm.re Rdl Srl
Via Monsignor Rossi , 23 24058 Romano Di Lombardia (BG)

Il nostro staff


  • Carlo Assandri
    Affiliato

  • Simonetta Olivini
    Coordinatrice

  • Riccardo Villa
    Responsabile

  • Helga Sandor
    Collaboratrice

  • Giada Terzi
    Collaboratrice
Via Monsignor Rossi , 23 24058 Romano Di Lombardia (BG)
Zona: Romano di Lombardia - Covo
Mostra su mappa
Orari: da lunedi a venerdi 09.00-12.30/14.30-20.00; sabato 09.00-12.30/14.30-18.00
Affiliato
Agenzia Imm.re Rdl Srl
Via Monsignor Rossi , 23 24058 Romano Di Lombardia (BG)

2025 Tecnocasa Franchising S.p.A. - P. IVA 08365160152 - Via Monte Bianco 60/A 20089 Rozzano (MI). Ogni agenzia ha un proprio titolare ed è autonoma. Privacy policy | Policy utilizzo | Cookie policy