Casa di corte in vendita

Covo, Vicolo Castello
€ 65.000
2 locali 2 locali
103 Mq 103 Mq
1 bagno 1 bagno

Casa di corte in vendita

Covo, Vicolo Castello

Descrizione annuncio

COVO

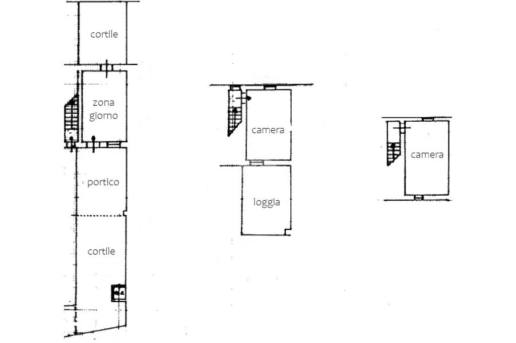
Proponiamo in vendita porzione di cortile indipendente disposta su tre livelli, interamente da ristrutturare ma con grandi potenzialità e la possibilità di usufruire dei bonus fiscali per la ristrutturazione.

L’immobile è così composto:

Piano terra: soggiorno con angolo cottura, disimpegno e bagno.

Piano primo: camera matrimoniale e loggiato.

Piano secondo: solaio utilizzabile come ulteriore camera o studio.

I primi due piani sono collegati sia da una scala a chiocciola interna sia da una scala esterna che conduce anche al terzo piano.

Completano la proprietà:

Cortile posteriore di circa 20 mq

Ampio cortile frontale di circa 80 mq

Cantina di 20 mq, ideale per diversi usi dopo la ristrutturazione

Una soluzione ideale per chi desidera creare una casa indipendente su misura, in un contesto tranquillo e con spazi esterni privati.

Mostra tutto

Nelle vicinanze

Trasporto pubblico Trasporto pubblico
Romano
Romano
2,9 Km
Trasporto pubblico
2,5 Km
Ricariche auto elettriche Ricariche auto elettriche
COVO Repubblica | RESSOLAR
260 m
Covo Barco | RESSOLAR
780 m
Romano Stadio | Ressolar
2,9 Km
Scuole Scuole
Scuola Primaria "De Amicis"
2,5 Km
Istituto Superiore Don Lorenzo Milani
2,6 Km
Istituto Scolastico Superiore "G.B. Rubini"
2,7 Km
Scuola elementare "Stadio"
2,7 Km
Scuola Primaria Stadio
2,7 Km
Farmacia Farmacia
Farmacia Antonioli
2,3 Km
Farmacia Comunale 2
2,3 Km
Farmacia Comunale
3,0 Km
Ospedali Ospedali
Ospedale Santissima Trinità
2,6 Km
Supermercati Supermercati
Conad
2,0 Km
Bennet
2,2 Km
SuperDì
2,7 Km
Lidl
3,0 Km
Negozi Negozi
Negozi
2,2 Km
H&M
2,4 Km
Bar Bar
Bar
160 m
Gelateria Maccalli
280 m
Barangolo
2,8 Km
Ristoranti Ristoranti
Piz Stop
1,9 Km
Max 3
2,2 Km
Ristoranti
2,3 Km
Pizzeria Sole
2,3 Km
Disco Pub Fashion
2,4 Km
Mostra tutto

Caratteristiche

Rif.:
61133847
Piano:
Su più livelli di 3
Totale piani:
3
Posti auto:
2
Terrazzi:
1
Camere da letto:
2
Mostra tutto
Prezzo Prezzo
€ 65.000
Rata mutuo Rata mutuo
€ 306 / mese
Spese annue Spese annue
€ 0
Proponi il tuo prezzoProponi il tuo prezzo
Immobile valutato con T·Valuta

Classe Energetica

G
G
G
G
G
G
G
G
G
EP globale non rinnovabile:
350.00 kW h/m² anno
EP globale rinnovabile:
350.00 kW h/m² anno
EP invernale del fabbricato:
EP estiva del fabbricato:
Anno di costruzione:
1967
Riscaldamento:
Autonomo
Tipo impianto:
A stufa
Tipo alimentazione:
Altro

Ti interessa visionare l'immobile?

Fissa un appuntamento  Fissa un appuntamento

Richiedi informazioni

Clicca su Leggi per aprire l'informativa
* Questi campi sono obbligatori

Calcola il tuo mutuo

Semplice e senza impegno
Anticipo

( % )
Mutuo

( % )

pochi semplici passi

inserisci i tuoi dati
Questionario completato
Grazie per aver richiesto un appuntamento senza impegno con un nostro Consulente del Credito e Assicurativo.

Hai inserito correttamente tutti i dati necessari e a breve riceverai una e-mail con un link da convalidare per inviare i tuoi dati.
Affiliato
Agenzia Imm.re Rdl Srl
Via Monsignor Rossi , 23 24058 Romano Di Lombardia (BG)

Il nostro staff


  • Carlo Assandri
    Affiliato

  • Simonetta Olivini
    Coordinatrice

  • Riccardo Villa
    Responsabile

  • Helga Sandor
    Collaboratrice
Via Monsignor Rossi , 23 24058 Romano Di Lombardia (BG)
Zona: Romano di Lombardia - Covo
Mostra su mappa
Orari: da lunedi a venerdi 09.00-12.30/14.30-20.00; sabato 09.00-12.30/14.30-18.00
Affiliato
Agenzia Imm.re Rdl Srl
Via Monsignor Rossi , 23 24058 Romano Di Lombardia (BG)

2026 Tecnocasa Franchising S.p.A. - P. IVA 08365160152 - Via Monte Bianco 60/A 20089 Rozzano (MI). Ogni agenzia ha un proprio titolare ed è autonoma. Privacy policy | Policy utilizzo | Cookie policy