Quadrilocale in vendita

Barbata, Via V. Veneto
€ 245.000
4 locali 4 locali
126 Mq 126 Mq
2 bagni 2 bagni

Quadrilocale in vendita

Barbata, Via V. Veneto

Descrizione annuncio

BARBATA

In contesto residenziale di nuova realizzazione, proponiamo splendido appartamento al piano primo con box e posto auto, ideale per chi cerca comfort, indipendenza e alta efficienza energetica.

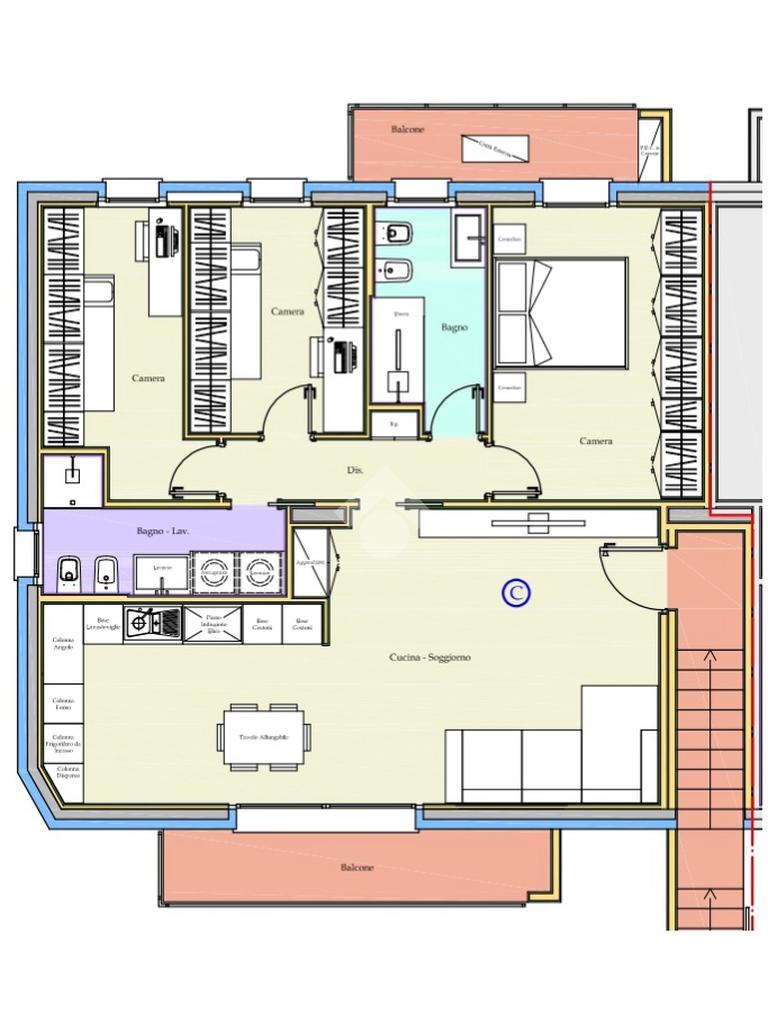
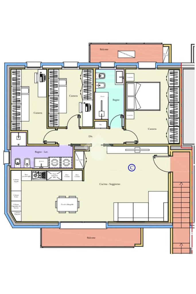
L’immobile è composto da ampia zona giorno con soggiorno e cucina, tre camere da letto e doppi servizi finestrati, il tutto rifinito con materiali moderni e impianti di ultima generazione.

Completano la proprietà un box e posto auto.

Classe energetica A4, con riscaldamento a pavimento, predisposizione per climatizzazione e impianto d’allarme.
Una soluzione moderna, elegante e pronta da vivere.

Perfetta per famiglie o per chi cerca qualità e spazio all’aperto in un contesto di nuova generazione.

Mostra tutto

Nelle vicinanze

Trasporto pubblico Trasporto pubblico
Trasporto pubblico
260 m
Ricariche auto elettriche Ricariche auto elettriche
Covo Barco | RESSOLAR
2,4 Km
COVO Repubblica | RESSOLAR
2,8 Km
Farmacia Farmacia
Farmacia Antonioli
890 m
Dispensario farmaceutico
1,4 Km
Supermercati Supermercati
Bennet
860 m
SuperDì
1,4 Km
Negozi Negozi
H&M
700 m
Bar Bar
Bar
1,3 Km
Gelateria Maccalli
2,7 Km
Ristoranti Ristoranti
Yummy
620 m
RoadHouse
620 m
Pollicino
630 m
Caffè Napoli Exytus
650 m
Caio
660 m
Mostra tutto

Caratteristiche

Rif.:
61109150
Piano:
1 di 2 (Piano basso)
Box:
1
Posti auto:
1
Balconi:
2
Camere da letto:
3
Mostra tutto
Prezzo Prezzo
€ 245.000
Rata mutuo Rata mutuo
€ 1.132 / mese
Spese annue Spese annue
€ 0
Proponi il tuo prezzoProponi il tuo prezzo

Classe Energetica

A4
A4
A4
A4
A4
A4
A4
A4
A4
EP globale non rinnovabile:
0.00 kW h/m² anno
EP globale rinnovabile:
0.00 kW h/m² anno
EP invernale del fabbricato:
EP estiva del fabbricato:
Anno di costruzione:
2025
Riscaldamento:
Autonomo
Tipo impianto:
A pavimento
Tipo alimentazione:
Metano

Ti interessa visionare l'immobile?

Fissa un appuntamento  Fissa un appuntamento

Richiedi informazioni

* Questi campi sono obbligatori

Calcola il tuo mutuo

Semplice e senza impegno
Anticipo

( % )
Mutuo

( % )

pochi semplici passi

inserisci i tuoi dati
Questionario completato
Grazie per aver richiesto un appuntamento senza impegno con un nostro Consulente del Credito e Assicurativo.

Hai inserito correttamente tutti i dati necessari e a breve riceverai una e-mail con un link da convalidare per inviare i tuoi dati.
Affiliato
Agenzia Imm.re Rdl Srl
Via Monsignor Rossi , 23 24058 Romano Di Lombardia (BG)

Il nostro staff


  • Carlo Assandri
    Affiliato

  • Simonetta Olivini
    Coordinatrice

  • Riccardo Villa
    Responsabile

  • Helga Sandor
    Collaboratrice

  • Giada Terzi
    Collaboratrice
Via Monsignor Rossi , 23 24058 Romano Di Lombardia (BG)
Zona: Romano di Lombardia - Covo
Mostra su mappa
Orari: da lunedi a venerdi 09.00-12.30/14.30-20.00; sabato 09.00-12.30/14.30-18.00
Affiliato
Agenzia Imm.re Rdl Srl
Via Monsignor Rossi , 23 24058 Romano Di Lombardia (BG)

2025 Tecnocasa Franchising S.p.A. - P. IVA 08365160152 - Via Monte Bianco 60/A 20089 Rozzano (MI). Ogni agenzia ha un proprio titolare ed è autonoma. Privacy policy | Policy utilizzo | Cookie policy