Casa indipendente in vendita

Antegnate, via ripa fredda
€ 160.000
4 locali 4 locali
90 Mq 90 Mq
2 bagni 2 bagni

Casa indipendente in vendita

Antegnate, via ripa fredda

Descrizione annuncio

ANTEGNATE

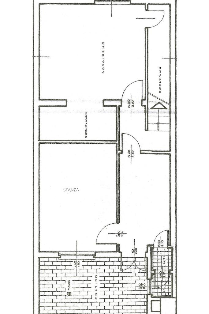
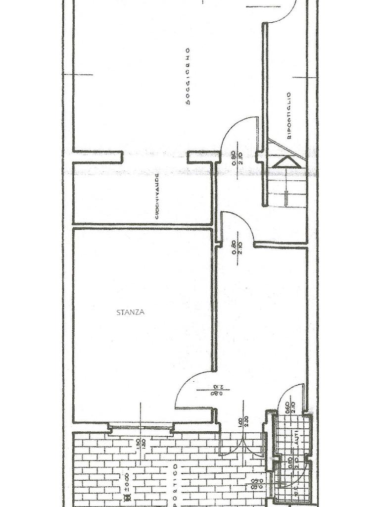
Porzione di casa su due livelli con cortile privato

Proponiamo in vendita graziosa porzione di casa disposta su due livelli, caratterizzata da spazi funzionali e da un piacevole cortile privato.

Al piano terra l’abitazione troviamo due luminose stanze e un bagno di servizio.

Il piano superiore ospita una camera da letto, una cucina abitabile con accesso al balcone e bagno finestrato con vasca e doccia.

Il cortile privato, direttamente accessibile dalla casa, rappresenta un valore aggiunto perfetto per pranzi all’aperto, area verde o spazio per animali domestici.

La soluzione si presenta ideale per chi cerca indipendenza, comfort e uno spazio esterno esclusivo.

Mostra tutto

Nelle vicinanze

Trasporto pubblico Trasporto pubblico
Trasporto pubblico
1,7 Km
Ricariche auto elettriche Ricariche auto elettriche
Covo Barco | RESSOLAR
2,4 Km
COVO Repubblica | RESSOLAR
2,4 Km
Farmacia Farmacia
Farmacia Antonioli
880 m
Dispensario farmaceutico
3,0 Km
Supermercati Supermercati
SuperDì
590 m
Bennet
920 m
Negozi Negozi
H&M
1,1 Km
Bar Bar
Bar
2,2 Km
Gelateria Maccalli
2,3 Km
Ristoranti Ristoranti
Cleopatra
350 m
Disco Pub Fashion
420 m
Half Crown Pub
590 m
Caio
1,1 Km
Caffè Napoli Exytus
1,1 Km
Mostra tutto

Caratteristiche

Rif.:
61169277
Piano:
Terra di 2
Totale piani:
2
Balconi:
1
Camere da letto:
3
Arredamento:
Assente
Mostra tutto
Prezzo Prezzo
€ 160.000
Rata mutuo Rata mutuo
€ 760 / mese
Spese annue Spese annue
€ 0
Proponi il tuo prezzoProponi il tuo prezzo

Classe Energetica

G
G
G
G
G
G
G
G
G
EP globale rinnovabile:
200.00 kW h/m² anno
EP invernale del fabbricato:
EP estiva del fabbricato:
Anno di costruzione:
1960
Riscaldamento:
Autonomo
Tipo impianto:
A radiatori
Tipo alimentazione:
Metano

Ti interessa visionare l'immobile?

Fissa un appuntamento  Fissa un appuntamento

Richiedi informazioni

Clicca su Leggi per aprire l'informativa
* Questi campi sono obbligatori

Calcola il tuo mutuo

Semplice e senza impegno
Anticipo

( % )
Mutuo

( % )

pochi semplici passi

inserisci i tuoi dati
Questionario completato
Grazie per aver richiesto un appuntamento senza impegno con un nostro Consulente del Credito e Assicurativo.

Hai inserito correttamente tutti i dati necessari e a breve riceverai una e-mail con un link da convalidare per inviare i tuoi dati.
Affiliato
Agenzia Imm.re Rdl Srl
Via Monsignor Rossi , 23 24058 Romano Di Lombardia (BG)

Il nostro staff


  • Carlo Assandri
    Affiliato

  • Simonetta Olivini
    Coordinatrice

  • Riccardo Villa
    Responsabile

  • Helga Sandor
    Collaboratrice
Via Monsignor Rossi , 23 24058 Romano Di Lombardia (BG)
Zona: Romano di Lombardia - Covo
Mostra su mappa
Orari: da lunedi a venerdi 09.00-12.30/14.30-20.00; sabato 09.00-12.30/14.30-18.00
Affiliato
Agenzia Imm.re Rdl Srl
Via Monsignor Rossi , 23 24058 Romano Di Lombardia (BG)

2026 Tecnocasa Franchising S.p.A. - P. IVA 08365160152 - Via Monte Bianco 60/A 20089 Rozzano (MI). Ogni agenzia ha un proprio titolare ed è autonoma. Privacy policy | Policy utilizzo | Cookie policy